Trilocale ristrutturato con possibilità di box auto pronto da vivere in Via Volturno - Disponibile dal 15 Giugno
In posizione strategica, a due passi dall'Ospedale e comoda a tutti i servizi, proponiamo in locazione un luminoso trilocale di 92 mq, completamente ristrutturato e arredato, situato al terzo piano SENZA ascensore.
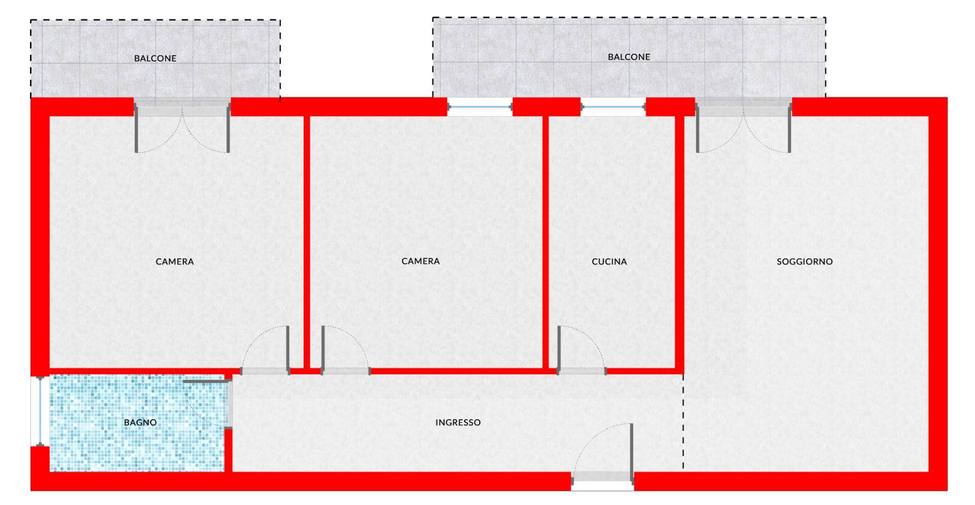
L'appartamento si apre su un accogliente soggiorno con accesso al balcone, affiancato da un pratico cucinotto separato. La zona notte offre due ampie camere matrimoniali, di cui una con balcone, e un bagno finestrato con doccia.
Dotato di riscaldamento autonomo, tre split per l'aria condizionata, infissi in PVC con vetrocamera e zanzariere in ogni ambiente, garantisce comfort e vivibilità in ogni stagione. Completo di lavatrice e lavastoviglie.
La proprietà include inoltre cantina, un valore aggiunto fondamentale in zona.
Canone € 900/mese, spese condominiali circa € 600/anno. Deposito cauzionale pari a tre mensilità. Contratto 4+4.
Possibilità di box auto nello stesso stabile € 100/mese.
Disponibile esclusivamente per conduttori referenziati con contratto di lavoro a tempo indeterminato.
Soluzione ideale per chi cerca una casa curata, funzionale e immediatamente abitabile in una delle zone più richieste della città.
Su espressa richiesta della proprietà .
1) si riserva di valutare la presenza di cani di piccola taglia;
2) si valutano esclusivamente candidati con garanzie reali ovvero contratti a tempo indeterminato;
3) non sono accettate garanzie di terze persone.
Per evitarvi inutili perdite di tempo vi invitiamo a contattarci solo in possesso di tutti i requisiti richiesti dalla proprietà, grazie.
Si precisa che le descrizioni sopra riportate non rappresentano alcun impegno contrattuale. Si avvisa inoltre la spettabile clientela che le caratteristiche tecniche, la disposizione interna e gli accessori indicati potrebbero, in alcuni casi, differire dall'effettivo stato di fatto dell'immobile.
- Affitto
Appartamento – Parma (AF336)
- Parma
- Ospedale Maggiore
900 €
3 locali
1 bagno
92m2
3° piano
Descrizione
Caratteristiche
| Superficie Totale | 92 m2 |
| Camere | 2 |
| Bagni | 1 |
| Locali | 3 |
| Stato conservazione | Ristrutturato |
| Piano | 3 |
| Piani totali | 3 |
| Anno costruzione | 1970 |
| Riscaldamento | Autonomo |
| Spese condominiali | 50 € |
Altre caratteristiche
- Disponibile da subito
Efficientamento energetico
| Classe energetica | F 2,61 - 3,00 EPgl |
| Efficienza energetica | 248.86 kwh/㎡ |
| Prestazione energetica inverno | bassa |
| Prestazione energetica estate | bassa |